Property Type
House, House
Parking
Garage: Yes, 10 parking
MLS #
40754014
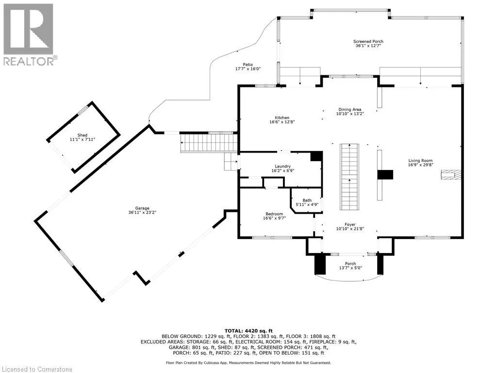
Size
4920 sqft
Basement
Finished, Full (Finished)
Listed on
-
Lot size
-
Tax
-
Days on Market
-
Year Built
2006
Maintenance Fee
-